【天津新房】金茂东丽地块规划曝光 1100套房在路上
傻大方小编提示您本文标题是:【天津新房】金茂东丽地块规划曝光 1100套房在路上。来源是。
【天津新房】金茂东丽地块规划曝光 1100套房在路上。套房|地块|金茂|新房|东丽|在路上---
尽管入市新盘数量骤减,新地块、新项目的信息释放却还在持续。上周五,天津市规划局网站公示出东丽区金茂小王庄项目详细规划方案,咱们就着热乎气儿来聊聊。
一月两地楼面价相差7000多
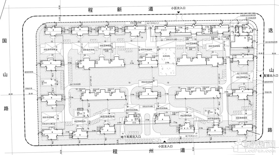
规划图显示,公示地块四至范围为:西至国山路,东至迭山路,北至程新道,南至程州道,该地块正是2017年金茂以31.5亿元竞得的津东丽程(挂)2017-092号宗地,成交楼面价为26413元/平米,没有竞自持住房面积。
套房|地块|金茂|新房|东丽|在路上---

而在同一月份,早于92号宗地摘牌的津东丽津(挂)2017-015号宗地,位于津滨大道板块,也是被金茂收入囊中,15号宗地为底价出让,仅金茂一家参与竞价,成交楼面价仅有19035元/平米,其中商服建面几乎与住宅部分持平,这也是开发商后期建设运营的一个难点,去年10月底该地块公示规划草案。
金茂在天津的项目并不多,目前在售的仅河东区的海河金茂府一处,属于涵盖住宅、商业、写字楼的综合体项目,现有精装高层在售,26层、30层到顶,2梯2户,户型为185、212平米,均价60000元/平米。预计2018年,两宗新公示规划的地块将成为金茂的重点。一些媒体网站透露,金茂小王庄项目将于2018年上半年开盘,但小编认为,4月份回复施工,2个月的工期或许会比较赶,下半年比较稳妥。
高层为主可接驳地铁2号线
参考小王庄项目规划方案,社区整体由23栋13-15层到顶高层、4栋8层到顶洋房组成,住宅提供1100套房源,车位1085个;公共配套面积预留比较充分,业主生活配套主要集中在紧邻程新道一侧,包括社区卫生服务站、文化活动室、商业服务网点、菜市场等。
套房|地块|金茂|新房|东丽|在路上---

社区中心位置是居民健身场地、组团绿地等休闲活动空间,照顾居住在各个方位的业主自由活动。小区共设置主出入口、次出入口、配套出入口三个出入口,功能分配相对明确,其中主出入口靠近2个地下车库入口,预计后期社区人车分流程度较高,社区车位比接近1:1。
可以看出,社区配建多以小型服务网点为主,地块项目周边有成熟社区分布,商业配套有香邑广场,小型餐饮、便利店也比较密集,后期还需要综合商业的丰富补足,学校有北程林小学、程林中学以及多家幼儿园,医疗方面多为卫生服务站,距离较近的三甲医院是平津医院。目前地块周围已经有地铁2号线通车,与国山路站直线距离约在3公里以内,至少后期可以单车、公交接驳地铁出行,也多了一个交通方式的选择。
新房告急地价房价基本持平
套房|地块|金茂|新房|东丽|在路上---

区域内的新房项目仅万科城市之光有小高层在售,8、11、15层到顶,1梯2户和2梯4户,户型为80、100、115平米 ,均价26000-27000元/平米。此外,香缇花园高层预计2018年开盘,33层到顶、2梯4户,户型为108、110平米3居,均价30000元/平米,精装现房是个优势。
回到文章最初,本次公示的小王庄地块项目成交楼面价已经达到26000元/平米以上,与当前同区域新房市场价格基本持平,去年的高价地项目将以怎样策略及产品应对这个固有市场?也许答案并不遥远。
- 瞰天津之百年北辰!
- 4月盐城最新房价出炉!这一年,涨最高的竟是这小区!
- 新房比二手房每平便宜一万多,房东哭了降价卖不出去
- 天津大学一硕士学位论文涉嫌大面积抄袭,校方:已成立调查组
- 2018天津地铁15条最全规划 环城刚需置业板块将迎来地铁时代~
- 青岛房价还会涨吗_青岛房价走势_青岛各区市最新房价表
- 时隔10个月!南京铁心桥再迎新房入市补仓 仅此72席
- 贵州各地区市县最新房价出炉,快看你家涨了好多?
- 天津首发手机版电子营业执照 企业办照“零跑腿”
- 【河西丰田】致炫一箱油能跑多远?